Chalet Bull Zermatt
Preview only — see all hotel photos
See all 98 photos
Το ξενοδοχείο στο χάρτη
Chalet Bull Zermatt
Το Chalet Bull Ζερμάτ διαθέτει βεράντα και απέχει 16 λεπτά με τα πόδια από το Μουσείο Matterhorn Museum. Επίσης, το κατάλυμα προσφέρει χώρο αποθήκευσης σκι και ενοικίαση εξοπλισμού σκι.
Αυτό το διαμέρισμα απέχει 750 μέτρα από το Μάττερχορν. Πάρκο Anfänger επίσης βρίσκεται σε απόσταση περίπου 25 λεπτών με τα πόδια. Το διαμέρισμα βρίσκεται περίπου 4 χλμ. από τον Σταθμό Gornergrat.
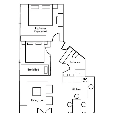
Το Chalet Bull Zermatt παρέχει στους επισκέπτες μπαλκόνι, βεράντα και χώρο καθιστικού, καθώς και σύγχρονες ανέσεις, όπως ηχομόνωση. Για περισσότερη άνεση, αυτό το κατάλυμα διαθέτει walk-in ντους και ξεχωριστή τουαλέτα. Επίσης, διατίθενται στεγνωτήρας μαλλιών και πετσέτες.
Το Chalet Bull Zermatt διαθέτει πλήρως εξοπλισμένη κουζίνα για όσους επιθυμούν να μαγειρεύουν. Η πλησιέστερη στάση λεωφορείων Wichje βρίσκεται σε απόσταση μόνο 5 λεπτών με τα πόδια. Μπορείτε να συμμετάσχετε σε διάφορες αθλητικές δραστηριότητες, όπως πεζοπορία και σκι, που διοργανώνονται από αυτό το διαμέρισμα.
Ανέσεις
Βασικές Παροχές
- Δωρεάν Wi-Fi
- Αθλητικές δραστηριότητες
- Σπα & Ευεξία
- Υπηρεσία μεταφοράς
- Κατάλληλο για παιδιά
- Κατοικίδια
Εγκαταστάσεις
- Απαγορεύεται το κάπνισμα σε όλους τους χώρους
- VIP check-in/ -out
- Υπηρεσία θυρωρού
- Επιτρέπονται κατοικίδια
- Ασφάλεια
- Δωμάτιο με θυρίδες
- Άμεσος δρόμος στις πίστες σκι
- Χώρος αποθήκευσης σκι
- Ανιχνευτές καπνού
- Πυροσβεστήρες
- Κλειδί
- Βραστήρας
- Κουζινικά είδη
- Τραπεζαρία εξωτερικού χώρου
- Ζωντανή ψυχαγωγία
- Κήπος
- Μασάζ πλάτης
- Μασάζ σε όλο το σώμα
- Σχολή σκι
- Πεζοπορία
- Ένα γήπεδο τέννις
- Ένα γήπεδο γκολφ
- Μαθήματα αεροβικής
- Μεταφορά από και προς αεροδρόμιο
- Υπηρεσίες για κατοικίδια ζώα
- Υπηρεσίες καθαριότητας
- Πλύσιμο ρούχων
- Υπηρεσίες τουριστικού γραφείου
- Υπηρεσία αγοράς τροφίμων
- Δωμάτια με δωρεάν WiFi
- Θέρμανση
- Καθιστικό
- Αίθριο
- Ταράτσα
- Έπιπλα κήπου
- Εγκαταστάσεις για τσάι και καφέ
- Τραπέζι φαγητού
- Δωρεάν προϊόντα περιποίησης
- LCD TV
- Βρεφικές κούνιες
- Δάπεδο με χαλί
Όροι ξενοδοχείου
Χάρτης
Τοπικά Αξιοθεατα
Αεροδρόμια
- Σιόν Αεροδρόμιο (77 χλμ.)
Σταθμοί τραίνων
- Σιδηροδρομικός Σταθμός Zermatt (1,6 χλμ.)
Αξιολογήσεις
100% Αληθινά Σχόλια